Projekt i zmiany w projekcie
Witam,
Zmiany w projekcje, czyli jak dostosować przyszły dom do tego, żeby spełniał wszystkie oczekiwania..
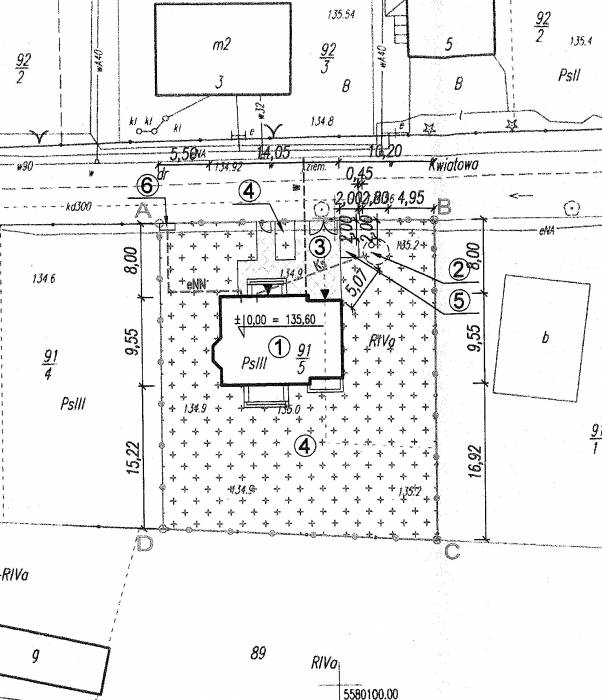
Szukając projektu kierowaliśmy się zdrowym rozsądkiem a nie ułańską fantazją. Była jeszcze "druga strona medalu", moja zmora czyli Wojewódzki konserwator zabytków. W MPZP moja działka, jak wspominałem w ostatnim wpisie, objęta jest ochroną konserwatora zabytków i archeologa. Wytyczne są dość wyśrubowane. Wysokość budynku do kalenicy max 9m, historyczna linia zabudowy, budynek osadzony 6m od granicy działki, nachylenie dachu od 38-45 stopni, doachówka w kolorze ceglastym. Jednym słowem budynek ma być prosty. Najlepiej 4 ściany w regularnym prostokącie zlepione kurzymi odchodami i dach przykryty strzechą. Wszystkie wytyczne z MPZP ograniczyly nam trochę pole manewru. Prawdę mówiąc wzieliśmy się na sposob, wybraliśmy kilkanaście pozycji katalogowych, umówiliśmy sie z panią konserwator i drogą dedukcji ustaliliśmy co może być a czego nie w naszym domu. Udało nam się namówić panią konserwator na ryzalit i na to, żeby dom był cofnięty względem drogi dwa metry wiecej niż zakłada MPZP. Dzięki Bogu ja i moja żona jesteśmy tradycjonalistami. Nie interesowały nas projekty nowoczesne a klasyczne. Wrzucając wszystko to do jednego wora po wielu namysłach, postawieniu za i przeciw padło na CELESTĘ LUX z pracowni archetonu. Rozkład pomieszczeń odpowiada nam idealnie. Przestrony, ustawny salon, kominek w centralnym miejscu w domu, ukryte schody,, poddasze zaprojektowane typowo jako część stworzona do odpoczywania, dodatkowy pokoj hobby, duży garaż i to wszystko zamknięte w rozsądnym metrażu (141m2). Jednym słowem dla nas wypas! Kuchnia mogła by być nieco szersza ale myślę, że jakoś ją ogarniemy, że bedzie dobrze, funkcjonalnie i przestronnie. Tak naprawdę niewiele nazmienialiśmy. Rozkład pomieszczeń pozostał niezmieniony. Zrezygnowaliśmy z balkonu od strony garażu oraz zmniejszyliśmy balkon od strony ogrodu. Balkon ods strony garażowej rzeczywiście jest bez głębszego sensu ale zmiana tego drugiego to już fanaberia K.Z. . Musieliśmy zrezygnować również z wszystkich ozdobników, podokienników, nadokienników, opasek i gzymsów. Oczywiscie tutaj słowo "musieliśmy" ma tylko na celu zaspokoić zakochaną w chatkach rodem z Biskupina panią konserwator :) Zmieniliśmy też materiał z betonu komórkowego na porotherm + styropianowe ocieplenie. No i to było by tyle, ot i wielkie zmiany :)
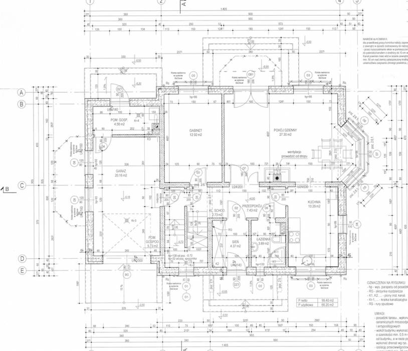
Parter:

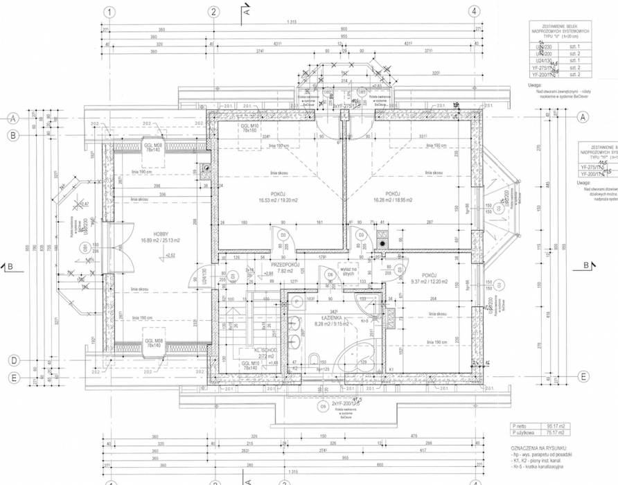
Poddasze:

Pozdrawiam


Komentarze